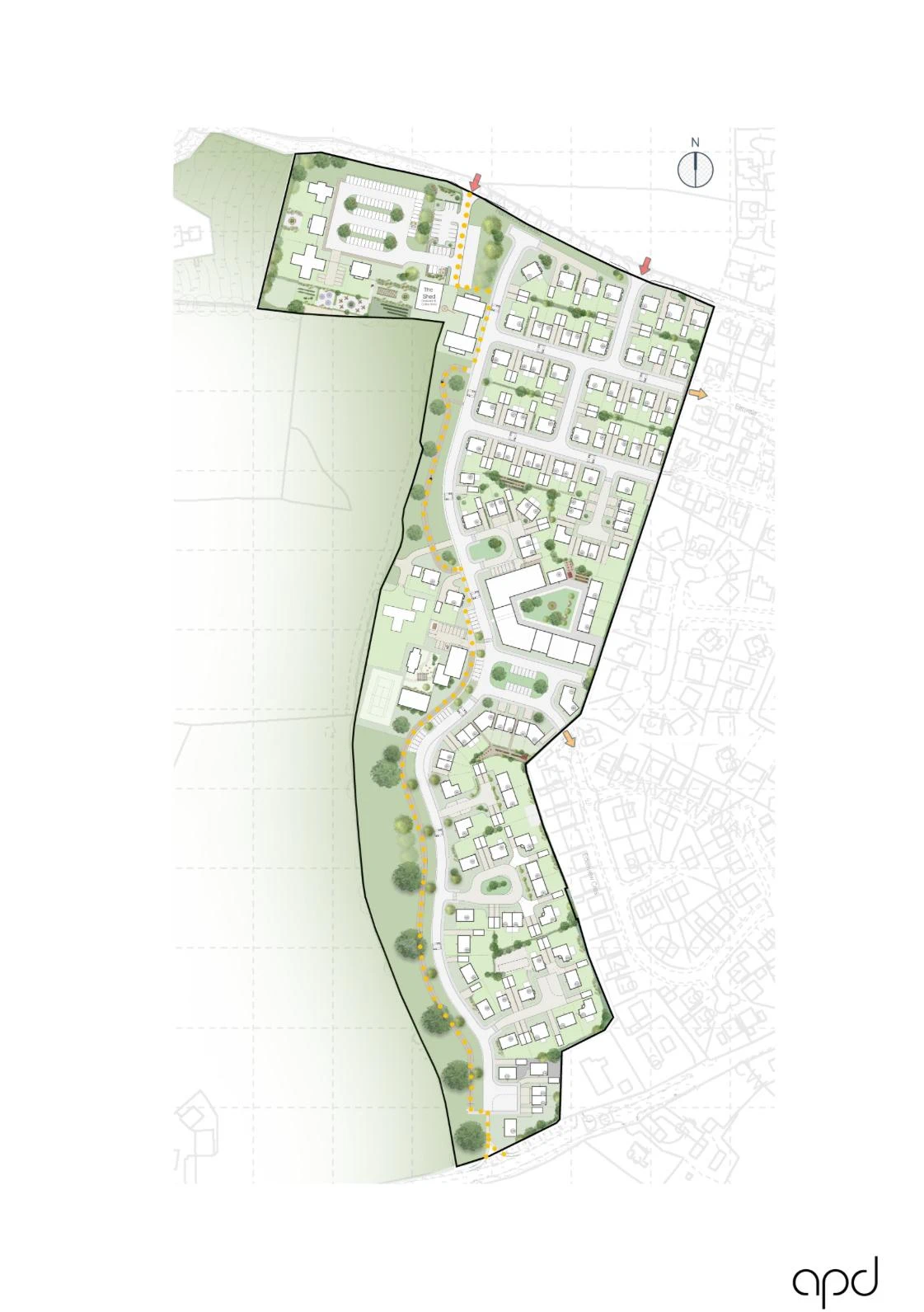
Proposals

The proposed development includes:

  • Nursing Home
  • Serviced Apartments for Senior Citizens: There will be a Physio, Gym & Wellness Studio as part of the serviced Apartments Block which will serve the entire scheme with amenities
  •  Bungalows for Senior Citizens
  • Family Homes
  • GP and/or Dentist Unit
  • Podiatrist Unit
  • Pharmacy
  • Counselling Commercial
  • Veterinary Unit
  • Retail Units.
  • Shed Restaurant Extension

This proposed development mix may change as it is subject to the PAN process and further understanding of Community need.